Deze energiezuinige nieuwbouwwoning is gelegen in een rustige kleine verkaveling aan de rand van Wijnendale, het centrum van Torhout ligt op fietsafstand via de naastliggende Groene 62.
De woning is perfect afgewerkt: geschilderd, voorzien van lichtarmaturen en raambekleding, deels gemeubileerd, een afgewerkte tuin en praktische tuinberging, hier is aan alles gedacht om de perfecte woning af te leveren.
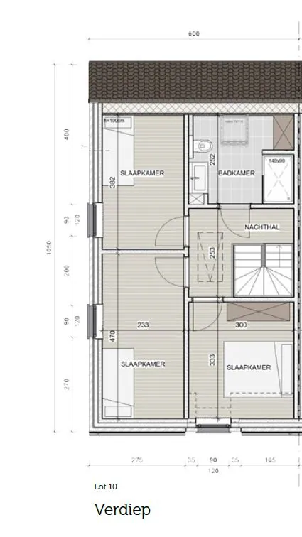
Indeling:
GELIJKVLOERS - inkomhal met gastentoilet, lichtrijke leefruimte met uitgeruste open keuken (van hieruit is er connectie via een groot schuifraam naar het terras en de tuin), praktische berging/wasplaats met een extra doorgang naar de tuin, er is nog ruimte voorzien thv de trappenhal voor het plaatsen van een bureel.
VERDIEPING - nachthal, 3 ruime slaapkamers en de badkamer met inloopdouche, 2e toilet en lavabomeubel. De ZOLDERVERDIEPING biedt een grote bergruimte van 30 m², een praktische troef!
De BUITENOMGEVING is aangelegd met gazon en een zonneterras, het perceel is volledig afgesloten en heeft een poortje, ten slotte is er nog een handige tuinberging.
De woning is energiezuinig (zonnepanelen), EPC A, heeft regenwater en wordt instapklaar afgeleverd. Mis deze buitenkans niet!
Ter info: er worden binnenkort nog andere woningen in deze buurt te huur aangeboden, volg onze website voor meer info hieromtrent.

Woonopp.
115 m²
Slaapkamers
3
Badkamers
1
Tuin
Ja

Algemeen

Adres:Alice Denoostraat 13
Torhout
Prijs:€ 1.050/maand
Type:Woning
Beschikbaar vanaf:1/03/2026
Ligging:Landelijk, Aan rustige weg
Bewoonbare opp.:115 m²
Type constructie:Traditioneel
Bouwjaar:2025
Algemene staat:Instapklaar

Indeling

Slaapkamers:3 (9.99 m², 10.95 m², 8.90 m²)
Badkamers:1
WC:2
Bureau:Ja
Woonkamer:35 m², Doorzonkamer
Keuken:Ja, Open keuken, Ingericht met toestellen
Berging:Ja
Zolder:30 m²
Terras:12 m²
Wasplaats:5 m²
Tuin:Ja
Tuin kwaliteit:Verzorgd
Parking:Ja
Parking Types:Gratis

Comfort

Bushalte:Ja - op minder dan 500 m
Winkel:Ja - op 500 m tot 1000 m
School:Ja - op minder dan 500 m
Raamwerk:PVC
Beglazing:Hoogrendementsglas
Verwarming:CV-ketel, Aardgas
Verwarmd water:Combiketel
Isolatie:Volledig geïsoleerd
Mech. ventilatie :Ja
Rookdetector:Ja
Zonnepanelen:Ja

Wettelijke gegevens

EPC Certificaat Nr.:31033-G-OMV_2020110059/EP20800/A010/D01/SD001
EPC Index:42,00 kWh/(m² jaar)
EnergyClass:A
EPC Geldig tot:27/06/2035
Overstromingsgevoelig:Niet meegedeeld
Overstromingsgebied:Niet meegedeeld
Erfgoed:Niet meegedeeld
Torhout
Alice Denoostraat 13

€ 1 050 /maand


U moet akkoord gaan met het privacybeleid van deze website
* Verplicht in te vullen
Torhout
Alice Denoostraat 13

€ 1 050 /maand

Torhout
Alice Denoostraat 13

€ 1 050 /maand