Lichtrijk en stijlvol afgewerkt nieuwbouw appartement, op wandelafstand van centrum Kortemark. Met een bewoonbare oppervlakte van 116 m² geniet je van een ruim woongevoel, lichtrijke ruimtes en strakke lijnen maken het geheel af.
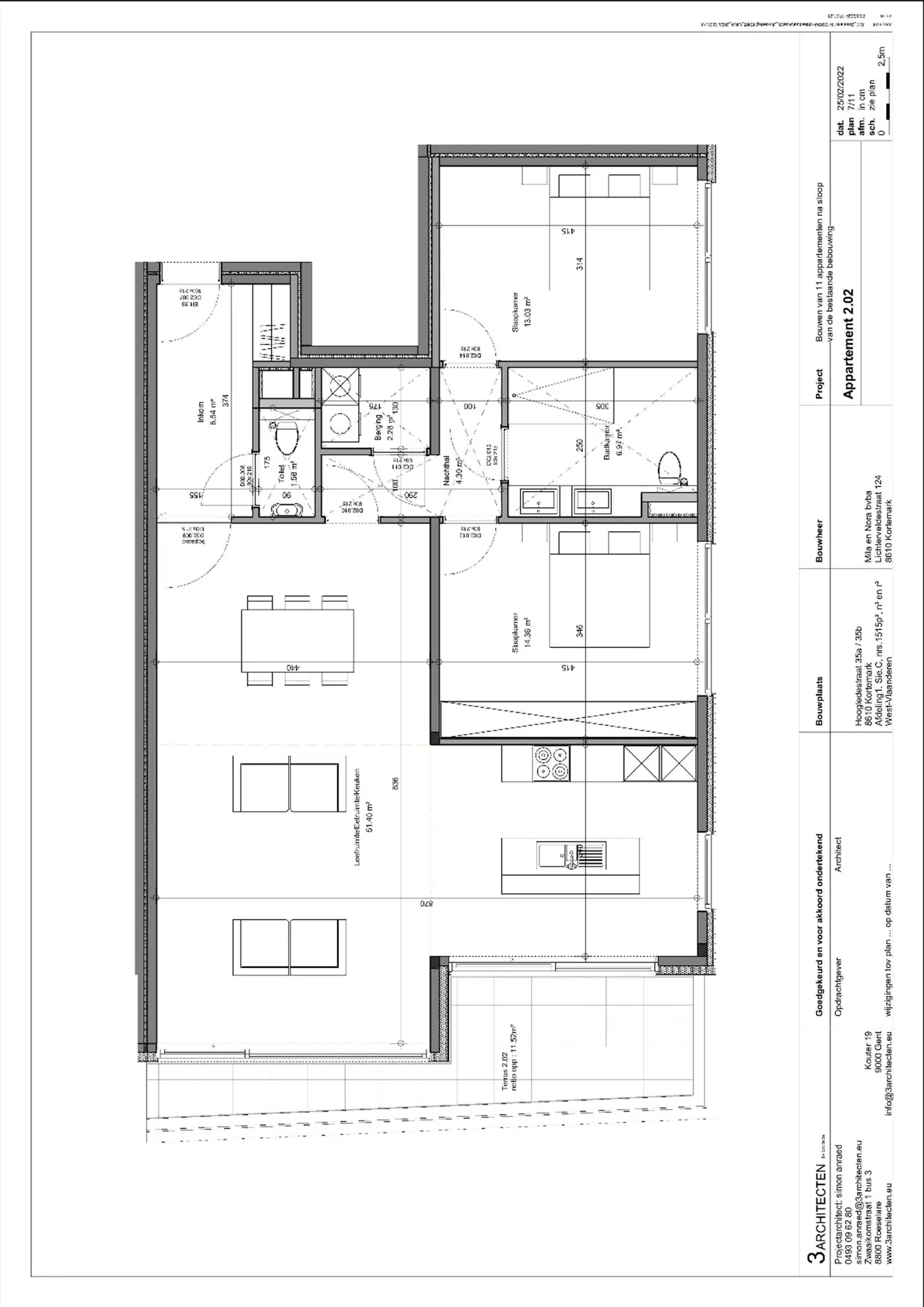
INDELING: inkomhal met apart toilet en plaats voor vestiaire, een lichtrijke en aangename leefruimte met ingerichte open keuken en ruim terras. Nachthal met 2 ruime slaapkamers en een badkamer (inloopdouche en lavabomeubel), alsook praktische berging. Het terras van 15 m² laat u volop genieten van uw buitenruimte!
Het appartement is voorzien van stijlvolle tegelvloeren meegaand met de mooie raampartijen. De keuken is ingericht met inbouwtoestellen en het eiland biedt u veel werkruimte.
Onder het gebouw is er mogelijkheid tot het aankopen van een enkele of dubbele garagebox met automatische poort, voor extra praktisch gemak!
Residentie Mila & Nora geniet van een heel mooie architectuur met bijzondere aandacht voor lichtinval, energiezuinigheid, geluidsisolatie en privacy. De modernste technieken zijn gebruikt in combinatie met een hoogwaardige afwerking. en duurzame materialen.
Technisch: condenserende-gaswandketel CV aardgas, hoogrendementsbeglazing, videofonie, handdoekradiator extra in uw badkamer, conforme brandbeveiliging, ventilatie,...
Stijlvol, lichtrijk en energiezuinig appartement, nu klaar voor bewoning.
Alle prijzen zijn exclusief kosten, registratie (12% op de grond) en BTW (21 % op de constructie).
Meer weten? Bel of email ons voor meer info of een plaatsbezoek.

Woonopp.
116 m²
Slaapkamers
2
Badkamers
1

Algemeen

Adres:Hoogledestraat 35/202
Kortemark
Residentie:Mila en Nora
Referentie:202
Vraagprijs:€ 319.620
Type:Appartement
Beschikbaar vanaf:Bij akte
Ligging:Buiten bebouwde kom
Bewoonbare opp.:116 m²
Type constructie:Traditioneel
Bouwjaar:2024
Op verdieping:2
Algemene staat:Normaal

Indeling

Slaapkamers:2 (14.36 m², 13.03 m²)
Badkamers:1
WC:1
Woonkamer:51 m²
Keuken:Ja, Open keuken, Ingericht met toestellen
Terras:15 m²
Wasplaats:Ja

Comfort

Treinstation:Ja - op 500 m tot 1000 m
Bushalte:Ja - op minder dan 500 m
Raamwerk:PVC
Beglazing:Dubbel
Verwarming:Condensatieketel, Aardgas
Verwarmd water:Combiketel
Isolatie:Volledig geïsoleerd
Lift:Ja
Mech. ventilatie :Ja
Videofoon:Ja

Wettelijke gegevens

EPC E-peil:38,00
Overstromingsgevoelig:Niet meegedeeld
Overstromingsgebied:Niet meegedeeld
Erfgoed:Niet meegedeeld

Grondplannen

Grondplan 1
Kortemark
Hoogledestraat 35 202

€ 319 620


U moet akkoord gaan met het privacybeleid van deze website
* Verplicht in te vullen
Kortemark
Hoogledestraat 35 202

€ 319 620

Kortemark
Hoogledestraat 35 202

€ 319 620